
No.10
開放的な空間とおうち時間を楽しむ家
ATELIER Style House
- 80〜100m²
- 夫婦と子ども
- 2階建
- 和モダン
オーナー様の声
施工事例
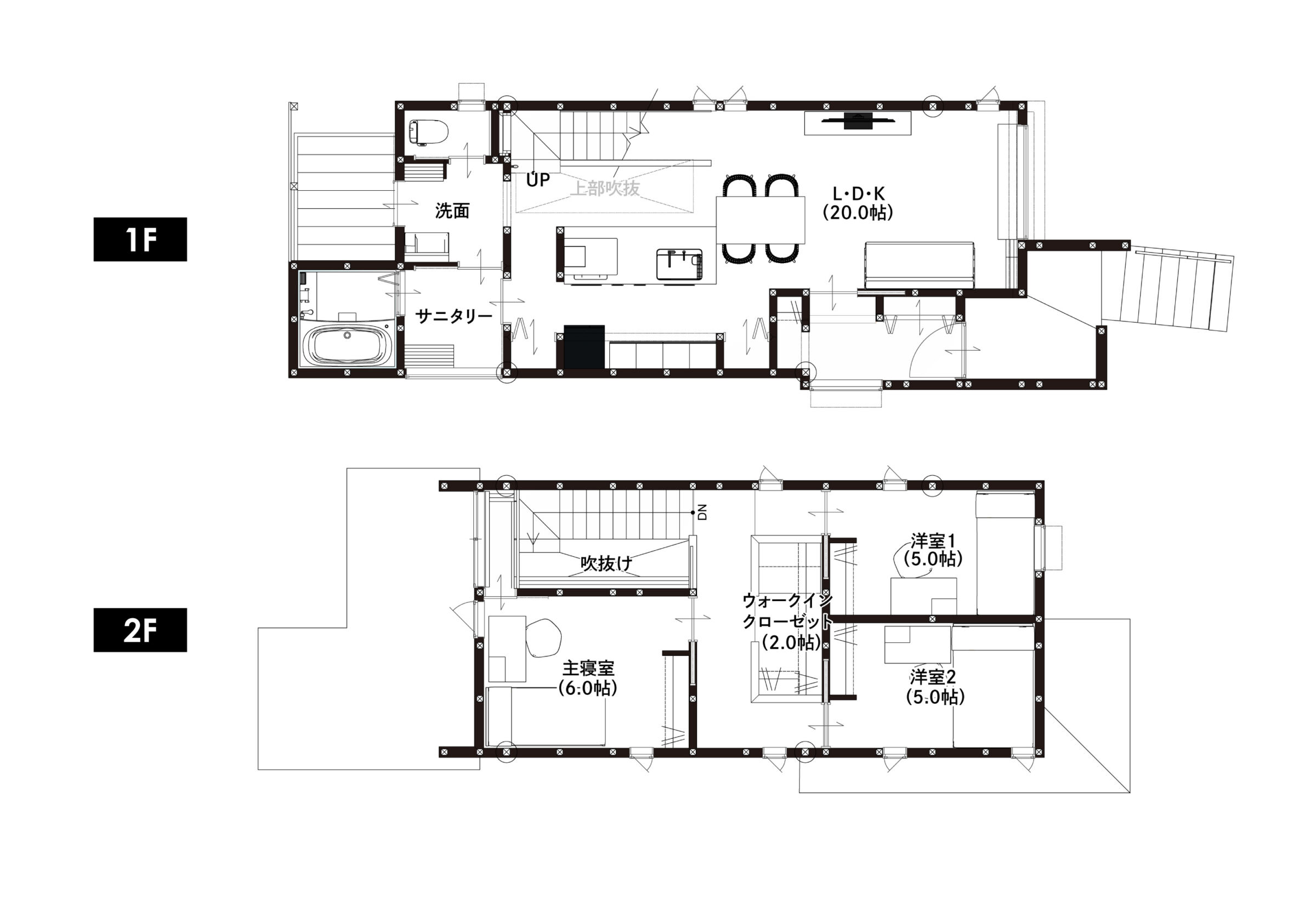
夫婦がお互いの時間を大切にできるよう、それぞれの居場所を設けました。さらに、飼い猫も家の中でのびのび過ごせるように、楽しい工夫を随所に散りばめています。
内装全体は、グレージュを基調としたジャパンディスタイルで統一。集成材の階段や造作のキャットウォークなど、木のぬくもりを感じられるデザインが特徴的。グレージュのクロスが空間をやさしく包み込み、間接照明や壁付照明の光がふんわりと反射することで、心落ち着く穏やかな住まいになりました。
高低差のある敷地には動きのあるアプローチを設け、帰宅時の景色を楽しめるよう計画しました。室内は真鍮のやわらかな灯りが壁面を照らし、LDKには眺望を楽しめる大きな開口を採用。キッチンは下がり天井と石目調タイルで上質に仕上げています。階段や吹抜けには自然光が届き、猫がくつろげる居場所も随所に配置。2階ホールは欄間から光を取り込み、家全体に明るさと抜け感をもたらしています。
高低差のある敷地には動きのあるアプローチを設け、帰宅時の景色を楽しめるよう計画しました。室内は真鍮のやわらかな灯りが壁面を照らし、LDKには眺望を楽しめる大きな開口を採用。キッチンは下がり天井と石目調タイルで上質に仕上げています。階段や吹抜けには自然光が届き、猫がくつろげる居場所も随所に配置。2階ホールは欄間から光を取り込み、家全体に明るさと抜け感をもたらしています。


駅まで歩ける土地を探していた中でこの場所を紹介してもらい、条件が理想的で迷わず決めました。以前からクラッセの雰囲気が好きで、自由度の高さや丁寧な説明に安心できたのも決め手です。夢ノートの要望を細かく反映してもらい、猫の居場所まで考えてもらえた点も嬉しいポイント。特に階段の光や大きな開口は日々の心地よさにつながっています。動線の良さや断熱性能のおかげで暮らしが快適になりました。
駅まで歩ける土地を探していた中でこの場所を紹介してもらい、条件が理想的で迷わず決めました。以前からクラッセの雰囲気が好きで、自由度の高さや丁寧な説明に安心できたのも決め手です。夢ノートの要望を細かく反映してもらい、猫の居場所まで考えてもらえた点も嬉しいポイント。特に階段の光や大きな開口は日々の心地よさにつながっています。動線の良さや断熱性能のおかげで暮らしが快適になりました。
