
No.3
デザインと性能を融合した美しい家
ATELIER Style House
- 100m²以上
- 2階建
- 3000万円台
- 和モダン
施工事例

ほんのりと和のテイストを感じるモダンなデザインに、気密性・断熱性に優れた内部構造を携えた高性能なデザイン住宅です。
四季を楽しめる中庭を中心に据え、穏やかな時間の流れる空間となっています。

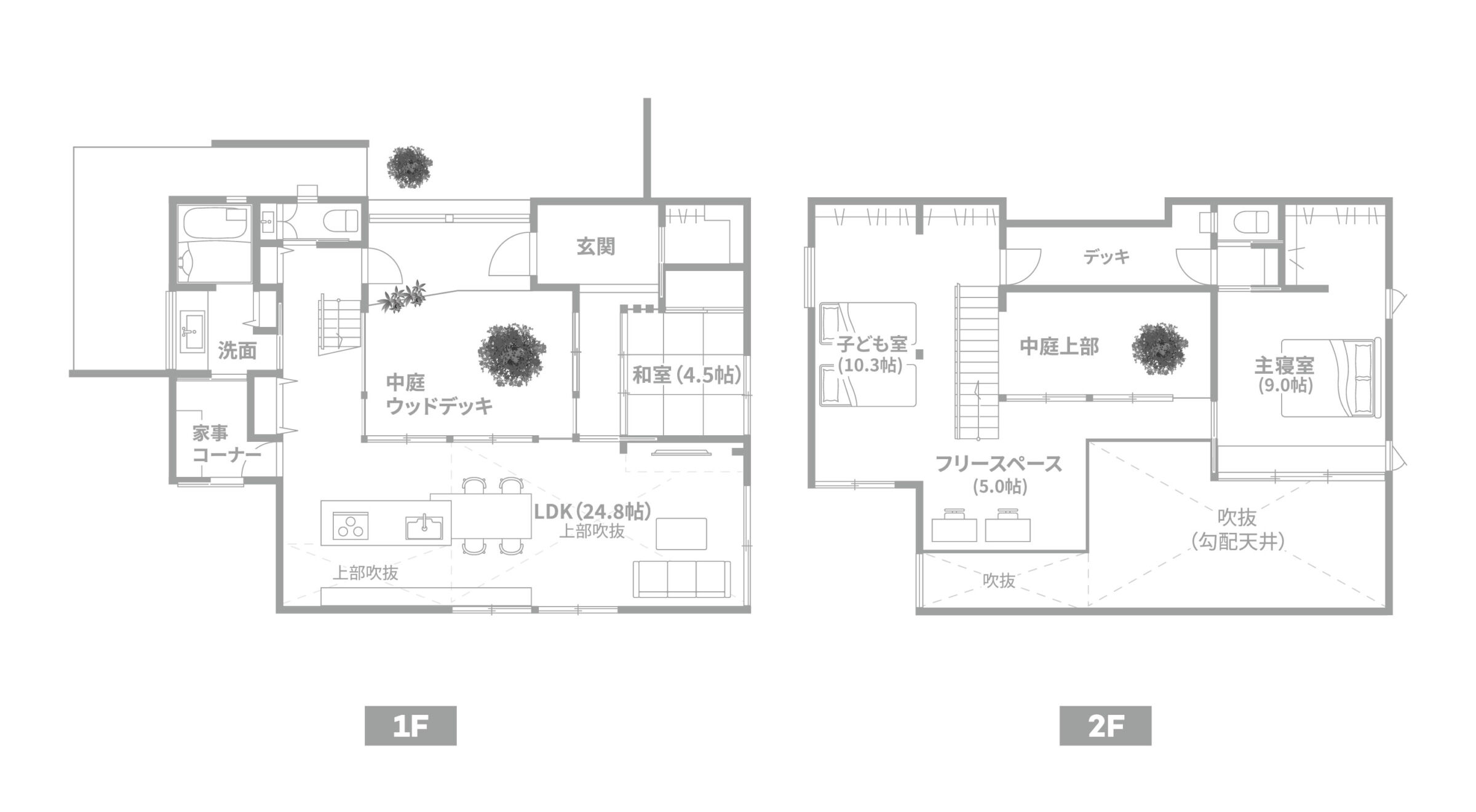
大きな下屋根をかけた落ち着きのある外観に、緩やかな傾斜のアプローチで「丘の上の家」の趣を添えました。木を囲むウッドデッキは木漏れ日が心地よい癒しの場所に。室内は吹抜けのLDKに光と風が通り、四季を通して快適に過ごせる高断熱仕様です。和室には設計士オリジナルの建具と障子を採用し、上質でモダンな雰囲気に。キッチンハウスのオーダーキッチンや造作洗面台、独立家事コーナーなど使い勝手にもこだわり、室内窓が家族の声と風をやさしくつなぎます。外観を彩るデッキは周囲を望む特別な空間です。
大きな下屋根をかけた落ち着きのある外観に、緩やかな傾斜のアプローチで「丘の上の家」の趣を添えました。木を囲むウッドデッキは木漏れ日が心地よい癒しの場所に。室内は吹抜けのLDKに光と風が通り、四季を通して快適に過ごせる高断熱仕様です。和室には設計士オリジナルの建具と障子を採用し、上質でモダンな雰囲気に。キッチンハウスのオーダーキッチンや造作洗面台、独立家事コーナーなど使い勝手にもこだわり、室内窓が家族の声と風をやさしくつなぎます。外観を彩るデッキは周囲を望む特別な空間です。
